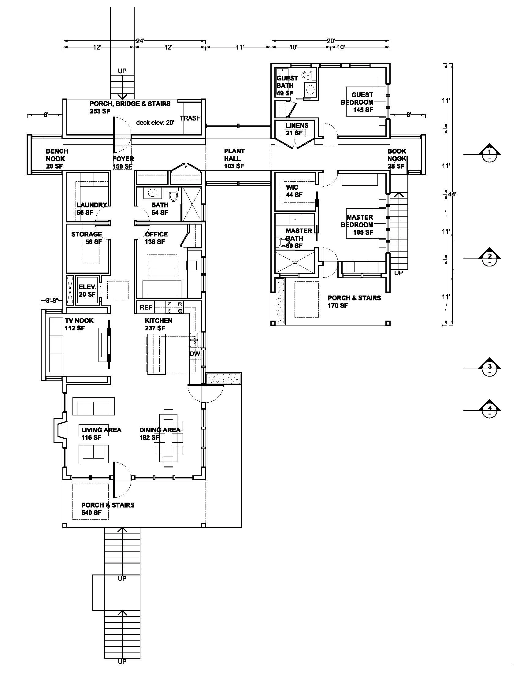
Conceived of as two discrete structures, one for private and one for public living, the design takes formal cues from the gable-roof homes along nearby beaches. A circulation bar intersects the two structures, housing the owner's beloved plants and two quiet sitting areas and animating the form with a clean, contemporary element. The plan emphasizes views through the house and towards the landscape sloping toward the harbor.
Located within the 100 year floodplain, the house is by necessity elevated above the landscape. The site plan works with the existing topography to mitigate the elevation shift between interior and exterior.
In collaboration with Julia M. Leeming, AIA